Case Study: Estis Compression Solutions
Build to Suit ProjectThe Client
Estis Compression Solutions (Estis) is one of the industry’s leading experts in well pad compression—helping operators maximize uptime, production and profits. This includes not only providing application engineering expertise, but also field compressor sales, lease, installation, service, maintenance and consultation. From the Permian to the Marcellus and everywhere in between— Estis Compression Solutions is built for the field.
The Challenge
Estis hired NRG Realty Group in August 2021 to assist their search for a new facility in the Permian Basin. Estis sent their requirements to NRG who put together tours of existing buildings. Every property seemed to check off one or two boxes that Estis was looking for, but it did not convey the excellence they were looking for to match their excellent service to their customers. They began discussing build to suit options after another round of tours in September 2021.
NRG developed a comparison matrix of 3 build to suit options for Estis to review. After several board meetings throughout November 2021, Estis decided to not move forward due to concerns in the market. The oil and gas market was still recovering from the COVID19 pandemic and oil wars. We periodically checked in with Estis to discuss the changes in the market and find the opportune time to revisit the build to suit project.
The Solution
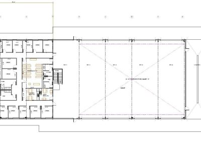
In June 2022, NRG brought the project back in front of Estis and the board was eager to see their build to suit options. They revisited quotes from developers and became aware that excellence was not in the numbers, but in the quality of work. They decided to move forward with Dahlia Companies due to their proven expertise in West Texas. Later that June, Estis received a floor plan based on discussions with Dahlia, and on June 30, we had an LOI for the development of 7 acres and the 17,625 facility. Estis’ distinctive vision led Dahlia to suggest Wolf Construction who is a well-known company in the Permian for their distinguished buildings. After several meetings between Estis, Dahlia, Wolf and NRG, a 7-year lease was executed on August 26, 2022 – just slightly over a year after initial discussions.
Â
 